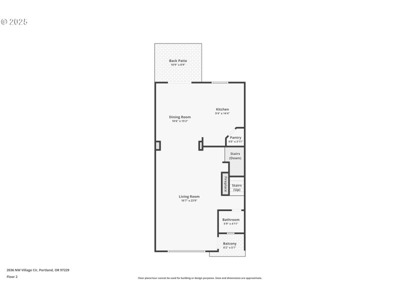
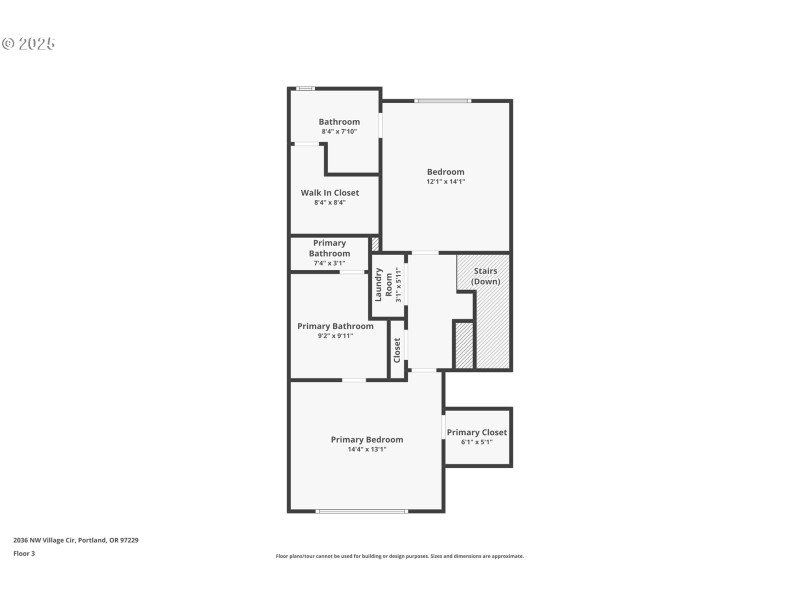
Just a block from The Village Center and adjacent to Mill Pond Park, this home strikes the perfect balance of convenience and privacy. Inside, you’ll find two spacious en suite bedrooms, hardwood floors on the main level, a cozy fireplace, and a versatile patio/deck setup—ideal for relaxing or entertaining. The open floor plan includes a gourmet kitchen with stainless steel appliances, high ceilings with crown molding, a powder room, and easy access to the outdoor living space.Upstairs, both bedrooms are comfortable suites with private baths and walk-in closets. The primary suite features vaulted ceilings, a soaking tub, a large shower, and walk-in closet. A spacious tandem garage features built-in storage, a workbench, and a bonus area under the stairs—perfect for additional storage Located just one block from the Forest Heights bus stop and within walking distance to Forest Park Elementary, this home is nestled in the heart of the highly desirable Forest Heights community. Enjoy access to 6 miles of walking trails, 200 acres of preserved natural space, and close proximity to top-rated schools, Forest Park trails, Nike, Intel, and more.Move right in and start enjoying the best of Forest Heights living! [Home Energy Score = 9. HES Report at https://rpt.greenbuildingregistry.com/hes/OR10238255]
NW Cornell, NW Miller, L@Millpong, L@ NW Village Circle
Dwelling Type: Residential
Subdivision: N/A
Year Built: 2006, County: US
NW Cornell, NW Miller, L@Millpong, L@ NW Village Circle
Listing is courtesy of Keller Williams Sunset Corridor