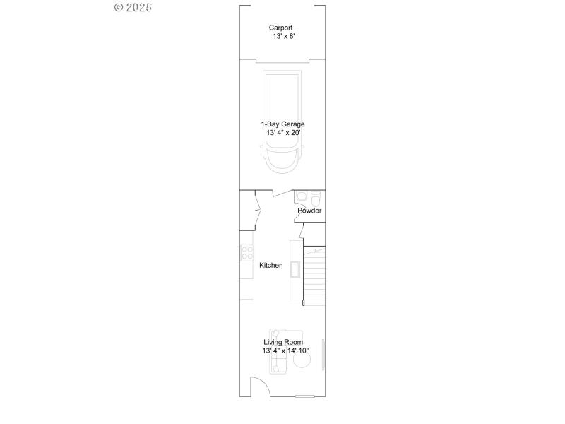
This new construction home is located in Reed's Crossing, a vibrant community minutes from major employers with more than 36 acres of open spaces connected by paths, a Town Center featuring shopping and dining, and access to highly rated schools. The Delany plan offers a functional two-story layout with an open-concept first floor that combines the kitchen, living room and dining area. Upstairs, two primary suites each feature a private bath and walk-in closet, connected by a versatile loft space, with a single-bay garage adding everyday convenience. Interior highlights include quartz countertops, Shaker-style cabinets, LVP flooring in the kitchen and entry, LVT in the baths, and two-tone interior paint. This home also includes central air conditioning, a refrigerator, washer and dryer, and blinds—all at no extra cost! Located on homesite 1624, Move in Ready. Rendering is artist conception only. Photos are of a similar home, features and finishes will vary. Flex credit/closing cost incentive available when financing with preferred lender! Use towards rate buydown and closing costs. [Home Energy Score = 10. HES Report at https://rpt.greenbuildingregistry.com/hes/OR10242908]
Blanton to right on 83rd to left on Quincy. Model home on the left
Dwelling Type: Residential
Subdivision: N/A
Year Built: 2025, County: US
Blanton to right on 83rd to left on Quincy. Model home on the left
Listing is courtesy of Lennar Sales Corp
Sign in to your account to continue