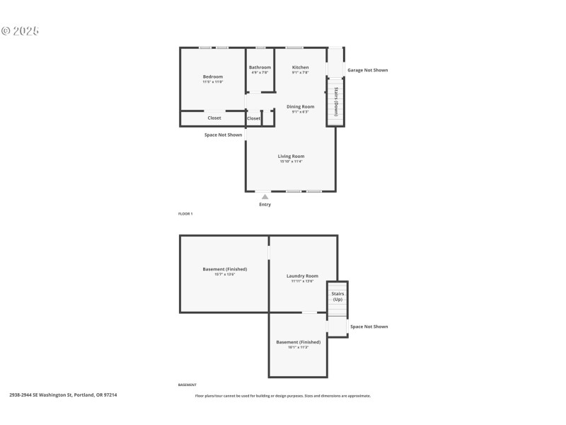
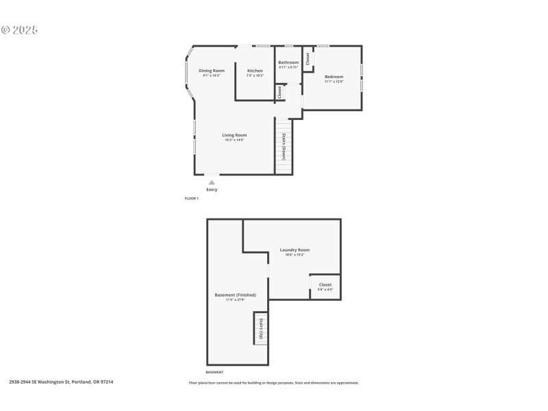
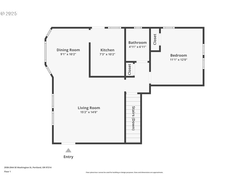
Rare 4-Plex in incredible inner SE location. Completely remodeled in 2025. Updates include new roof, new electric panels, all new plumbing, new kitchens, new bathrooms, refinished hardwood floors, all new paint, windows, and brand new appliances. Each unit has spacious dry and private bonus rooms in basement with own water heater, W/D set and separate furnace/mini split. Charming, modern, and tastefully updated. Listing Agent is owner. 3 of the 4 units have been rented to LT tenants.
SE Washington and SE 30th
Dwelling Type: MultiFamily
Subdivision: SUNNYSIDE / HAWTHORNE
Year Built: 1949, County: US
SE Washington and SE 30th
Listing is courtesy of Kelly Right Real Estate of Portland, LLC
Sign in to your account to continue