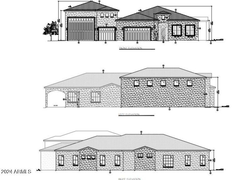
This beautiful lot nestled within the Estrella Mountain Ranch community, presents an opportunity to build your dream home on this private lot where you will never have a neighbor behind you. It comes with a complete set of building plans for a remarkable 4050 sqft residence.
With all necessary documentation prepared for a formal preliminary submittal to the HOA, including surveys, civil grading and drainage plans, architectural site plans, floorplans, elevations, and construction details.
Situated within walking distance of the Starpointe Residents Club, an expansive 24,400 sq. ft. facility offering an array of amenities for a vibrant lifestyle, you'll have access to a non-heated pool, Star Splash Waterpark, a heated lap pool, a state-of-the-art fitness center and on-site restaurant.
Dwelling Type: Land
Subdivision: ESTRELLA MOUNTAIN RANCH PARCEL 76
Year Built: N/A, County: N/A
Listing is courtesy of Best Homes Real Estate