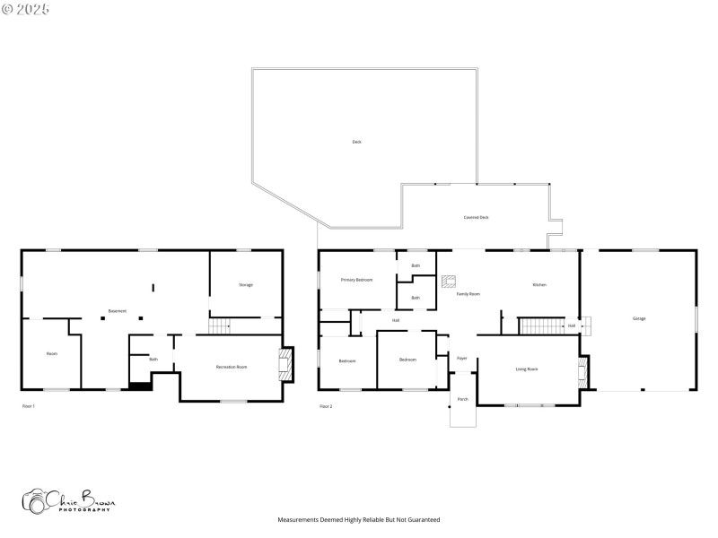
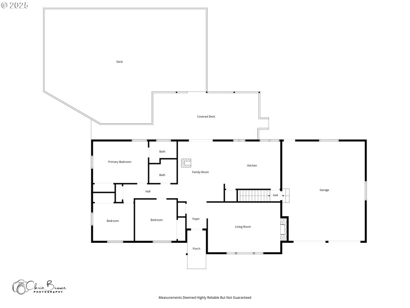
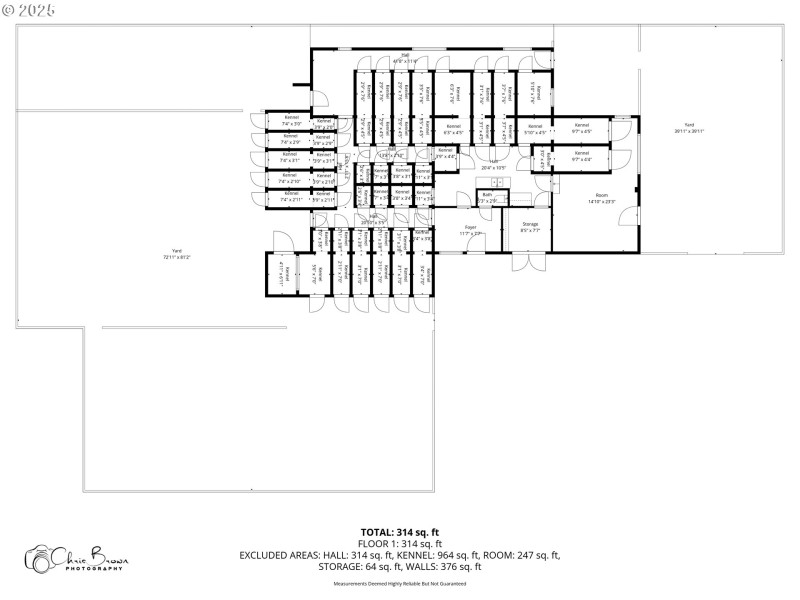
Your Dream Property Awaits — Where Lifestyle, Income & Adventure MeetExperience the perfect blend of comfort, space, and opportunity on this 9.85-acre ranch-style property, ideally located just minutes from downtown Sandy. This meticulously maintained 4-bedroom, 2.5-bath stick-built home with a full basement offers a welcoming, light-filled layout and meaningful upgrades throughout, including a brand-new roof to keep you safe for years to come.Enjoy quartz kitchen countertops, two new mini-splits, a certified wood stove, and a spacious covered deck with a mini bar overlooking your private retreat — complete with a Solar heated pool and wrap-around deck, perfect for entertaining.Formerly known as Powerline Kennels, this property carries a rare “grandfathered” nonconforming use zoning, making it a one-of-a-kind business opportunity. The kennel features 20 runs, a lobby, bathroom, feed kitchen, and grooming shop, with zoning that allows for up to 50 dogs, offering significant growth potential for a boarding or training operation.The 72x48 custom-built shop is a true showstopper — a dream space for craftsmen, hobbyists, or entrepreneurs. It boasts two 16x12 overhead doors, three lofts, a flex space with kitchenette/bar, walk-in cooler, game room, 200 AMP power, water, and a separate septic system. Whether you envision a workshop, event space, or entertainment hub, the possibilities are endless. Outdoorsman and Hunter’s paradise. Surrounded by natural beauty and abundant wildlife. The income-producing hayfield provides an additional revenue stream, and the established landscaping — from towering shade trees to vibrant flowers — creates a truly serene setting.This is more than just a home — it’s a lifestyle property with income, recreation, and expansion potential built right in.
SE Ten Eyck to SE Coalman Rd.
Dwelling Type: Residential
Subdivision: N/A
Year Built: 1970, County: US
SE Ten Eyck to SE Coalman Rd.
Listing is courtesy of The Baker Agency
Sign in to your account to continue