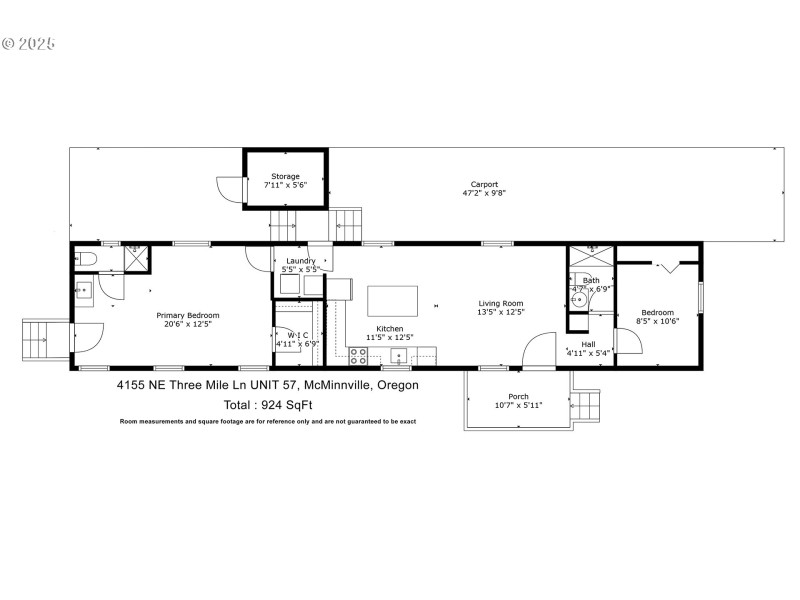
Welcome to Olde Stone Village — McMinnville’s premier 55+ manufactured home community! This beautifully updated single-wide home sits on an oversized lot and offers a bright, vaulted open floorplan with stylish modern touches throughout. Recent upgrades include: Kitchen~Quartz countertops, center island, updated appliances; Primary Bathroom~ Walk-in closet, built-in vanity with smart mirror, walk-in shower, and a new access door leading to the patio; Backyard~ Southern exposure, lush with flowering perennials, complete with a sprinkler system; Interior: Newer laminate flooring and updated lighting throughout, fresh paint; Newly painted exterior and interior for a crisp, clean look; Outdoor Features: Covered side porches, extended carport, and a separate 7x5 tool shed for extra storage. Vibrant, welcoming community offering pool, pickleball/tennis court, gym, recreation center, park and next to Evergreen Museum and Splash Park. Come see it for yourself!
99w to Laurel Dr, to Olde Stone Village - #57
Dwelling Type: Residential
Subdivision: Olde Stone Village
Year Built: 1993, County: US
99w to Laurel Dr, to Olde Stone Village - #57
Listing is courtesy of John L. Scott Market Center