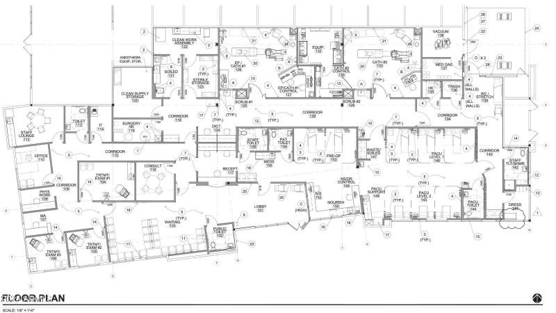
Rare opportunity to lease an in-place ASC License surgical center and clinical space which allows an owner-user to begin operating immediately. The property consists of two Class C operating rooms, a large waiting area, reception, break room, multiple private exam rooms, post operation recovery room, and back up generator. Excellent layout for multiple medical users. The property is located less than a mile for Chandler regional hospital, near Banner Ocotillo and Banner Desert hospital and minutes from all the dinning and entertainment of Downtown Chandler. Get in touch with listing agent for tours ** Lesse to verify all facts, figures, and measurements. **
Head North off the Loop 202 on South Dobson. Pass Chandler Regional hospital and then make a righ on Wet Boston Road.
Dwelling Type: Comm/Industry Lease
Subdivision: Sol Valley Surgery Center ASC in Suite 2
Year Built: 2014, County: N/A
Head North off the Loop 202 on South Dobson. Pass Chandler Regional hospital and then make a righ on Wet Boston Road.
Listing is courtesy of Realty ONE Group