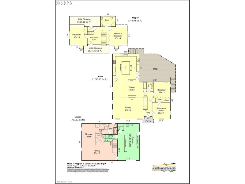
PREPARE TO BE CAPTIVATED! Don’t let the humble façade of this charming Portland Heights Cape Cod deceive you. Its traditional formal entertaining spaces - defined by updated wood sash windows, hardwood floors, crown molding and a wood-burning fireplace - flow seamlessly into a 2020 kitchen addition fit for the finest of chefs! Unparalleled culinary luxury and convenience define the heart of this home. Premium appliances, honed quartz counters, plentiful storage and an expansive walnut-topped island provide the canvas – you provide the skills! Stunning vaulted ceilings showcase custom wood beams and bespoke glass pendant lighting. An inviting fireplace warms the winter evenings, while French doors to the expansive deck with gas fire pit complete the summer nights. Venture beyond the deck to the sport court for a game of hoops or to the gated edible garden featuring blueberries, raspberries, an apple tree, kiwi fruit, hops and a variety of herbs – so much tucked away on this quaint and unassuming street! Back inside you’ll find a full bath and two bedrooms on the main level – one perfect for a home office. Two more generous bedrooms occupy the upper floor, separated by a full bath and a light-filled landing ideal for taking in a good book or using as an additional workspace. The lower level offers high ceilings, a spacious family room, a laundry room with sewing desk and a third full bathroom, making this space just right for visiting guests. The oversized garage, currently outfitted as a workshop, is easily convertible back to vehicle storage. Ample off-street parking...even space for an RV or boat! This gorgeous home reflects 25 years of pride in ownership -- the perfect marriage of modern updates and timeless craftsmanship. Space. Light. Design. Convenience. Charm. This home has it all! [Home Energy Score = 1. HES Report at https://rpt.greenbuildingregistry.com/hes/OR10237660]
SW MONTGOMERY DR to SW FERN to SW UPPER DRIVE PL...Home is on LEFT...Park on RIGHT SIDE of street.
Dwelling Type: Residential
Subdivision: PORTLAND HEIGHTS, WEST HILLS
Year Built: 1941, County: US
SW MONTGOMERY DR to SW FERN to SW UPPER DRIVE PL...Home is on LEFT...Park on RIGHT SIDE of street.
Listing is courtesy of Cascade Hasson Sotheby's International Realty
Sign in to your account to continue