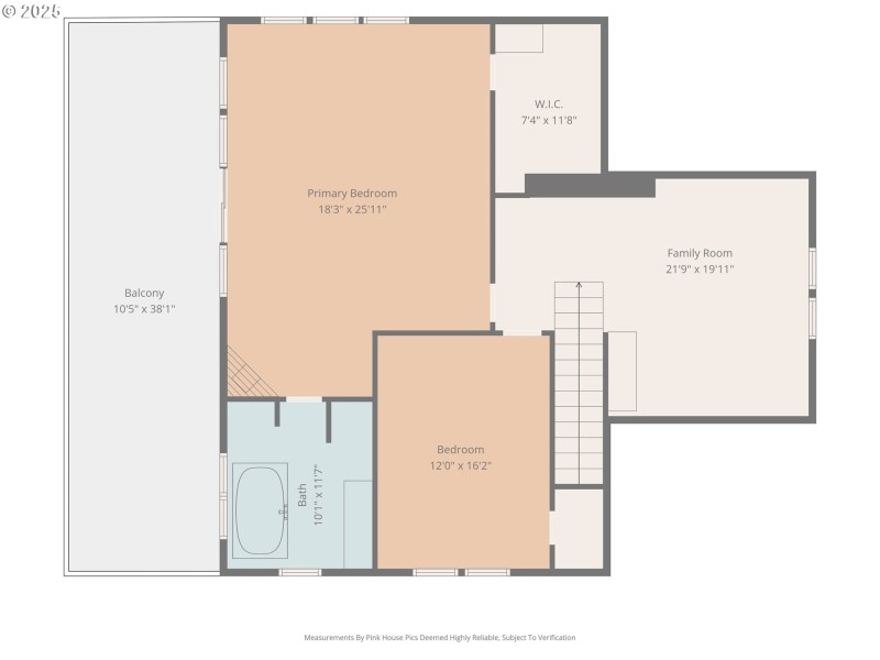
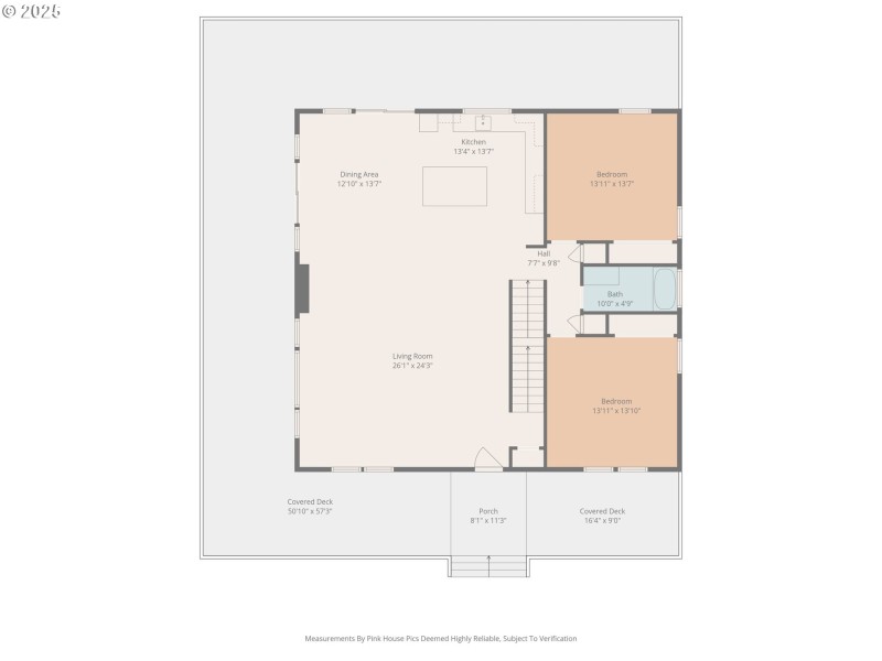
Come finish this beautiful custom-built mountain home — already about 80% complete and full of potential!This spacious 4-bedroom, 3.5-bath home features a 3-car garage and double wraparound decks showcasing breathtaking mountain views from every angle.Much of the major work is already done, including kitchen appliances and fully installed HVAC heat pumps. The living room is prepped for a mini-split, and A/C units are onsite and ready to install. The home still needs a gas line, finish electrical, paint, countertops, and flooring to reach completion.Custom garage doors are included and ready for installation once paid for, completing the home’s exterior.Buyer to verify all square footage and perform their own due diligence regarding county building permit and to have active building permits transfered into their name.Sold as-is — a rare opportunity to finish a nearly completed custom build and make it truly your own amid stunning mountain scenery.
Highway 101 to Highland Rd to Highland Ln
Dwelling Type: Residential
Subdivision: N/A
Year Built: 2024, County: US
Highway 101 to Highland Rd to Highland Ln
Listing is courtesy of MORE Realty
Sign in to your account to continue