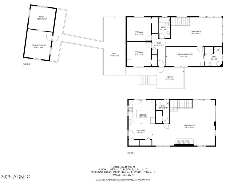
Fully Furnished home! Get out of the heat! Just a short hour and a half away from Phoenix and you are immediately met with a 30 degree drop in temperature.
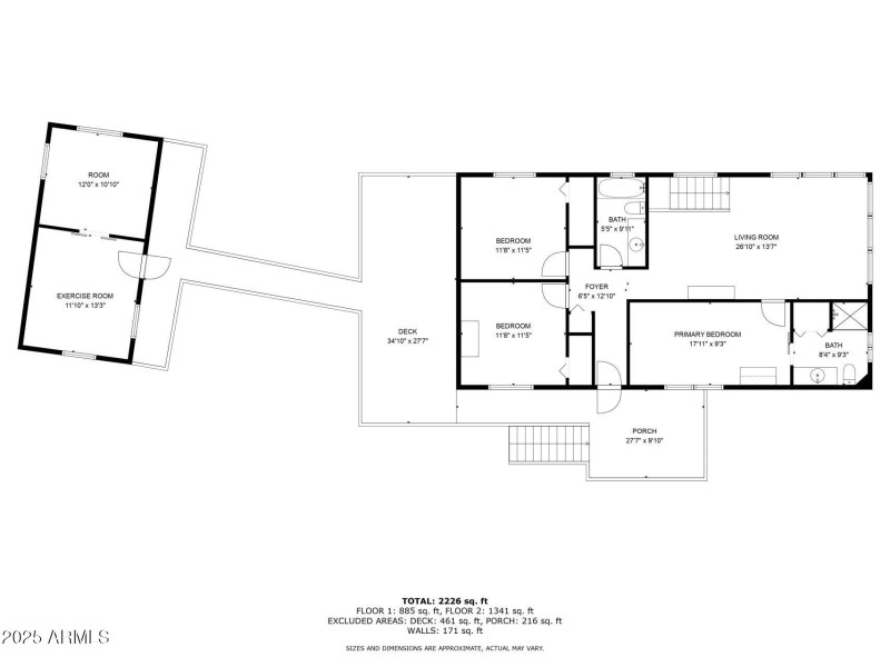
The peaceful community of Breezy pine was an old mining town with tons of history, nestled in the Bradshaw Mountains, at 6,500 in elevation this home sits on 1.38 acres a peaceful and small town feel and a neighborhood of homeowner pride where everyone takes care of each other. Well cared for 2 story block home that was originally built 1977 and rebuilt in 2001 with new metal roof, siding, stucco, plumbing, electrical, drywall, insulation, flooring and new garage. Two lots combined in 2018 for added privacy, ultimately making it 1.38 acres. Home is accessible year-round. There are hiking trails and off roading at your disposal. Property has seasonal creek. Yard is also fenced in to keep most of wildlife out. Enjoy unlimited fruit trees like apple, peach, cherry, walnut and oak trees, surrounded by gorgeous pine trees and delicious blackberries.
There is plenty of room for toys and large garden. Home has a large covered patio and a large deck in front and a small deck towards the back. Exterior paint was repainted in 2020. Septic was done in 2021. Lot was surveyed in 2024 and still has pink ribbon markers up. Home has a We-Boost for better internet and phone service. Star link is also available.
One car garage has plenty of storage and a work bench. The studio just above garage is 288 sq ft with heat available.
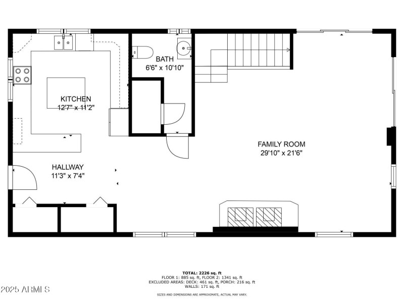
Tile and laminate floors throughout. Large loft with plenty of windows bringing in an abundance of natural light, plenty of kitchen cabinets, ceiling fans and heater vents in every room. Downstairs tile is heated. Pellet stove was installed in 2016. Water heater was installed in 2021. This is the perfect cabin for your summer getaway and it won't last long.
9 miles up Poland rd. Poland rd turns into Breezy Pine
Dwelling Type: Residential
Subdivision: BREEZY PINE ACRES PLAT B
Year Built: 1977, County: N/A
9 miles up Poland rd. Poland rd turns into Breezy Pine
Listing is courtesy of Compass