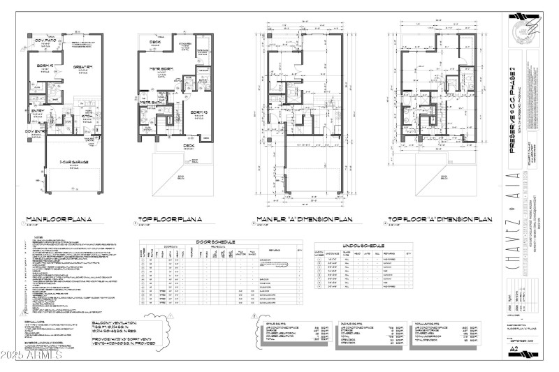
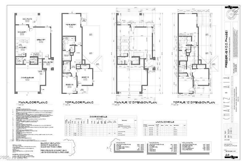
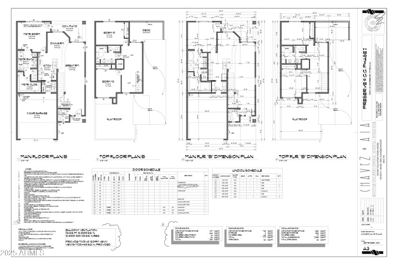
12 parcels coming with approved plans and permites ready to build. Half of civil work is already done. this is 6 buildings, each building has 2 attached townhouses. All of them have 2 car garage. 3 floorplans randing from 1650 square feet livable space to 1950 sf. seller is willing to build it if the buyer need a builder.
Plan A: 1602 sf 3 bed 3 bath 2 car garage with balcony. 2nd bedroom on ground level.
Plan B: 1962 sf 3 bed 2.5 bath 2 car garage with balcony. Master on ground level.
Plan C 1887 sf 3 bed 2.5 bath 2 car garage with balcony.
Dwelling Type: Land
Subdivision: PRESERVE AT CAVE CREEK CONDOMINIUM AMD
Year Built: N/A, County: N/A
Listing is courtesy of Niksi