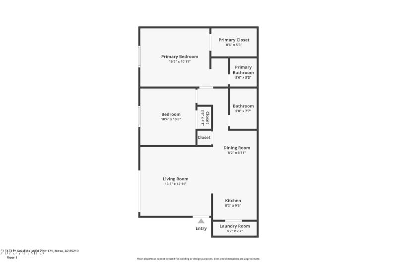
Prime Location! Discover this charming 2-bedroom, 2-bathroom ground-level condo, ideally situated right next to the community pool and spa - perfect for relaxing and enjoying the Arizona sunshine. Step inside to find a beautiful kitchen featuring new granite countertops and ample cabinet space. Freshly updated with new carpet and new vanities, this unit is move-in ready. The spacious master bedroom boasts a huge walk-in closet, offering plenty of storage. Don't miss this opportunity to live in a fantastic location with incredible amenities!
Guadalupe/Arizona Ave. W to 623 Turn left (south) into 1st entrance. Bldg on right just south of community pool #171
Dwelling Type: Residential
Subdivision: WOODGLEN SQUARE CONDOMINIUMS TRACT H
Year Built: 1983, County: N/A
Guadalupe/Arizona Ave. W to 623 Turn left (south) into 1st entrance. Bldg on right just south of community pool #171
Listing is courtesy of Real Broker