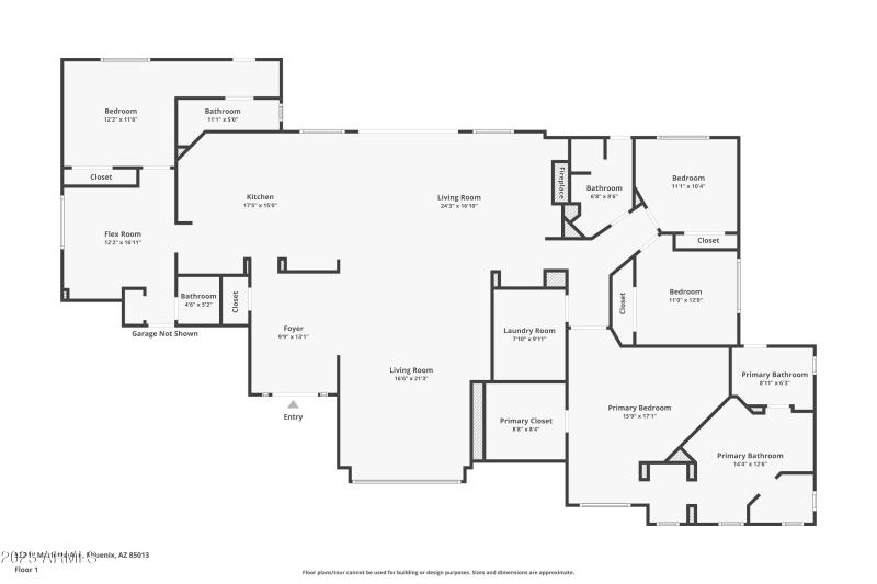
In the heart of Madison School District ''between the 7's'', this steel-frame home was built from the ground up in 2007 with new plumbing and electric. No HOA in this desirable friendly neighborhood, walk to Murphy's Bridle Path, Palo Verde Golf Course, All Saints and Meadows. Minutes from Brophy, Xavier, SFX. The open living and dining areas are perfect for entertaining, while a versatile bonus room can serve as a teen hangout, media lounge, or game room. Private guest suite, ideal for visitors or multi-gen living. Primary suite impresses with a spa-like bath, massive walk-in shower with multiple heads. Two bedrooms include custom loft beds to maximize space. Energy-efficient SpacePak HVAC ensures year-round comfort with less humidity. Step outside to enjoy a heated saltwater pool. Custom loft beds in 2 bedrooms can be removed to make more traditional bedrooms or used for storage space above beds. Uses for these bedrooms are limitless!
North on 7th Ave to Marlette, East to property
Dwelling Type: Residential
Subdivision: AMBASSADOR ESTS
Year Built: 2007, County: N/A
North on 7th Ave to Marlette, East to property
Listing is courtesy of United Real Estate Specialists