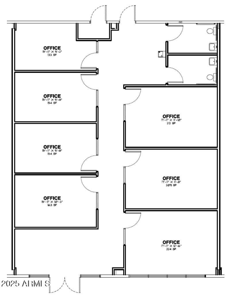
Fully finished, fully occupied cash flowing executive suites office condo for sale.  Stable tenant base and 100% occupied.  Situated within the professionally managed Colorado Place, this office condo investment offering is ideally situated in the middle of The Golden Mile of Highway 95 and strategically located near prime retail activity.  Ample parking in this highly visible office location along Mohave Valley Highway.  Well maintained property with beautiful mountain views in densely populated trade-area with a population in excess of 50k withing a 5 mile radius. 
  
 
                                                        Dwelling Type: Comm/Industry Sale 
                            Subdivision: COLORADO PLACE BUSINESS CONDOMINIUMS 
                            Year Built: 2000, County: N/A 
                            
                        
Listing is courtesy of Kidder Mathews