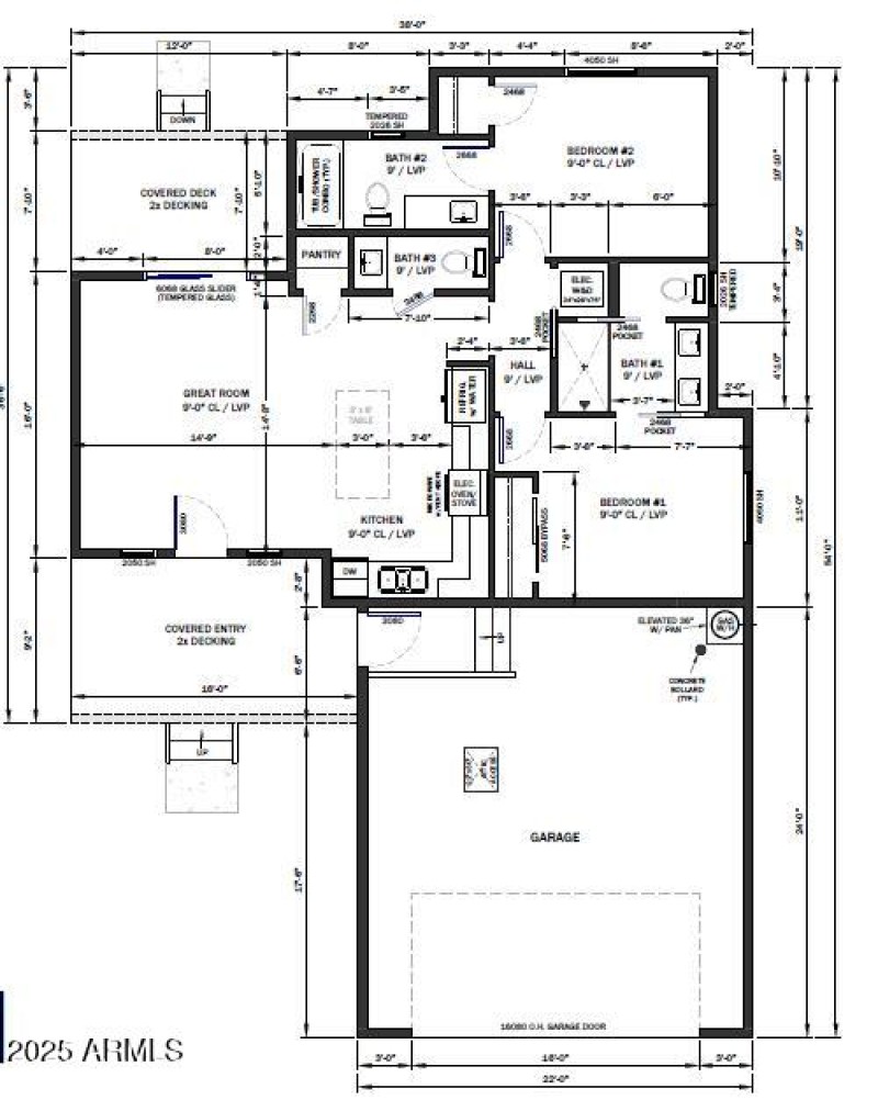
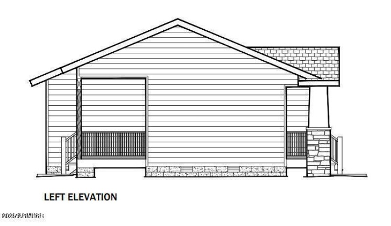
UNDER $300,000 for a brand new home is an unbelievable opportunity. The future of Show Low is in Show Low Bluff. This home is to be built using the buyers financing. A $7000 incentive to either buy down the loan or help with money down is available to you. The home features two primary suites with ensuites and a half bath for your guests. The thoughtful floor plan not only provides plenty of natural light and a feeling of spaciousness, but it also provide amazing outdoor living potential with front and back decks. Buyer to purchase the lot for $53,000 and contract with the builder for $246,500. Plan available with or without attached garage. Other lots and plans available in subdivision.
Us 60 to Penrod, right on Bluff Ridge Rd, Left on Ridgeline dr, Left on Rimstone, Lot on right
Dwelling Type: Residential
Subdivision: SHOW LOW BLUFF PHASE 1B
Year Built: 2026, County: N/A
Us 60 to Penrod, right on Bluff Ridge Rd, Left on Ridgeline dr, Left on Rimstone, Lot on right
Listing is courtesy of West USA Realty