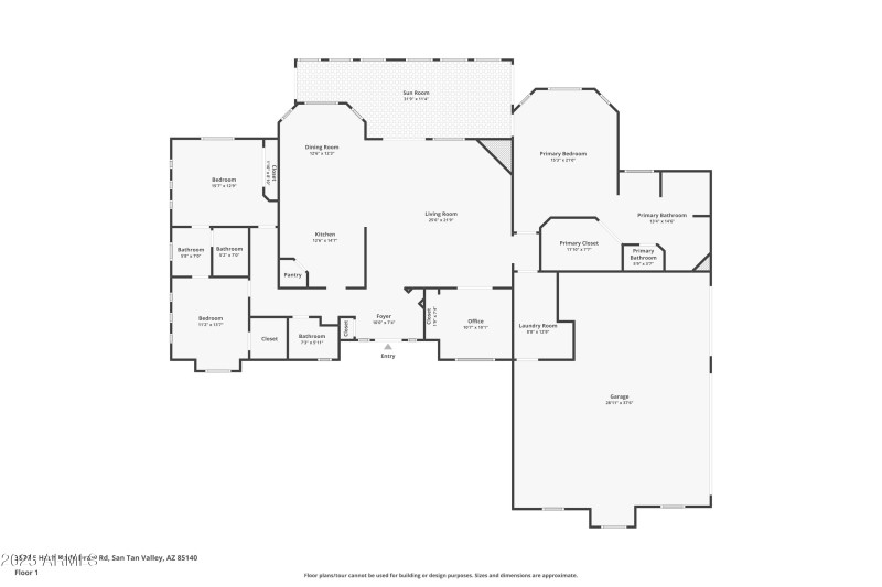
Truly a unique property with endless possibilities—this 1.25-acre horse property offers room for everything! Bring your outdoor toys, RV, and more with plenty of space, a 12'x20' shed, RV parking, and a 3-car over-height garage. The beautifully updated home, with no HOA and eye-catching brick curb appeal, boasts 2,437 sq ft of living space with 4 bedrooms, 3 baths, an Arizona room, and a den. Enjoy soaring vaulted ceilings in the open living area, a kitchen with breakfast bar and nook, and a primary suite featuring a massive walk-in closet with built-ins and a full bath. Jack-and-Jill guest rooms share a dual-vanity bath, while the expansive backyard is designed for entertaining with 2,000 sq ft of pavers, a 20'x30' shade structure, and block wall privacy. All this just minutes from Schnepf Farms, shopping, and dining - your private oasis awaits!
Dwelling Type: Residential
Subdivision: S3 T3S R8E
Year Built: 2003, County: N/A
Listing is courtesy of My Home Group Real Estate