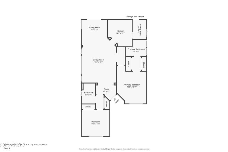
Retire in Style and Comfort! This beautifully updated 2-bedroom, 1.75-bath home in a desirable golf adult community is NICELY KEPT, lightly lived in for 10+ years, and truly MOVE-IN ready! Recent upgrades include new flooring and baseboards, full interior paint, and new toilets (Oct 2024), plus peace of mind with a new roof and transferrable warranty (2022), HVAC New in 2014 and sellers didn't occupy in summer so lightly used, new gutters, and skylights (2022)—and much more! Step inside to a warm and inviting interior featuring neutral-toned walls, plantation shutters, large windows for natural light, and a spacious master suite with walk-in closet. The kitchen shines with upgraded appliances a tile backsplash, and fridge stays. Skylight and soaring 9+ ft ceilings. Garage Opener Newer too The cozy courtyard with tasteful landscaping and a lovely shade tree offers the perfect spot to relax and enjoy expansive views of mature trees. In the backyard are 3 delicious fruit trees including tangelo, lemon and grapefruit. The backyard also features durable pavers expanding the patio area! Additional highlights include a 2-car garage and inside laundry. Community amenities abound including a clubhouse, pool & spa, golf, workout facility, and more - offering the ultimate active lifestyle! Let me know how I can help!!
From R. H. Johnson, North on Limousine, L-Heritage, R-Vista North
Dwelling Type: Residential
Subdivision: SUN CITY WEST 50 LOT 1-205
Year Built: 1993, County: US
From R. H. Johnson, North on Limousine, L-Heritage, R-Vista North
Listing is courtesy of My Home Group Real Estate
Sign in to your account to continue