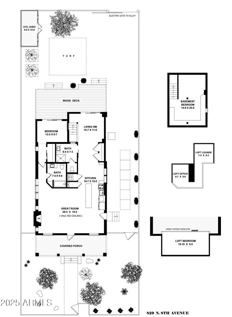
Cleverly nicknamed ''The Loft Haus'' this 100+ year old bungalow has been reimagined with modern features & a gallery vibe that makes it unlike any other home you've seen. Located steps from Roosevelt Row within the Arts District, you'll enjoy a curated design that feels like a loft but within a single family home. As you arrive, you'll love the classic curb appeal with huge front porch. Inside you'll discover hardwood floors, designer fixtures & finishes, 16 ft ceilings offering two separate loft living areas & an open concept floor plan that flows perfectly with a basement below. In the backyard you'll enjoy amazing outdoor living with incredible views of Downtown & electric gated parking. Walking distance to all your favorite restaurants, events & activities - This home is a lifestyle!
Heading south on 7th Ave, Turn right onto Roosevelt and then left onto 8th Ave. Home is on the left side.
Dwelling Type: Residential
Subdivision: KENSINGTON PLACE
Year Built: 1912, County: N/A
Heading south on 7th Ave, Turn right onto Roosevelt and then left onto 8th Ave. Home is on the left side.
Listing is courtesy of HomeSmart