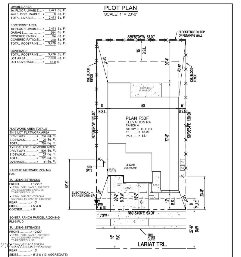
Brand New Coming Feb 26' - LOWER PAYMENTS & BIG SAVINGS! Now offering all closing costs paid and rate buydown incentives for a short time! This 3-bedroom, 2.5-bath home includes a dedicated office, a 3-car wide garage and over a 30ft backyard. The gourmet kitchen offers quartz countertops, backsplash, 42'' upper cabinets, 36'' gas cooktop, wall oven & microwave. Plank tile flows through main living areas. The primary suite features a tiled shower, walk-in closet, and raised-height vanities in all baths. Outside, enjoy community pickleball, ping pong, parks, walking paths and BBQ areas—just minutes from top shopping, dining, and entertainment. Photos not of actual home but same floorplan.
From Happy Valley & 147th Ave, Go North to community
Dwelling Type: Residential
Subdivision: Miravida aka Bonita Ranch
Year Built: 2026, County: US
From Happy Valley & 147th Ave, Go North to community
Listing is courtesy of Mattamy Arizona, LLC
Sign in to your account to continue