AMAZINGLY RARE OPPORTUNITY to own over 10 acres & 3 structures nestled deep on Ramsey Canyon Rd. The information reflected are total amounts for all parcels reflected in the sale. Please look at features sheets for individualized information. Features of this gorgeous property include access to nature in an unparalleled way with 2 redwood sequoia trees, mature fruit trees (plum, apricot, pear & pomegranate), running ponds, seasonal running creek, mature native trees, private courtyards and ample wildlife. Don't be surprised to see turkeys, deer and a vast variety of birds!
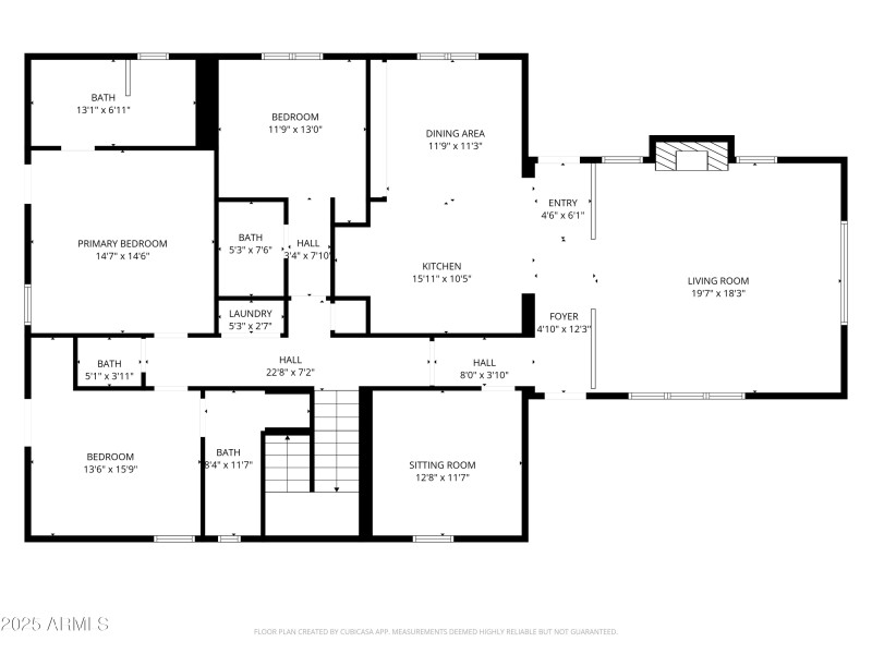
29 E Ramsey Canyon: single family dwelling, 3032 sq ft., 1978 build, 6 bedrooms, 6.5 bathrooms, each bedroom features an en suite bathroom, full kitchen, living room, additional sitting room, private balconies, mini splits in each bedroom.
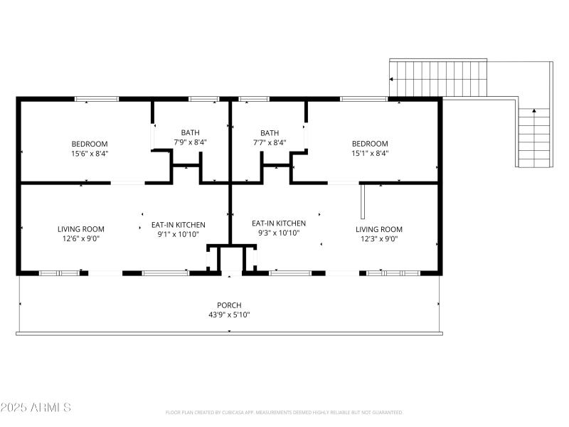
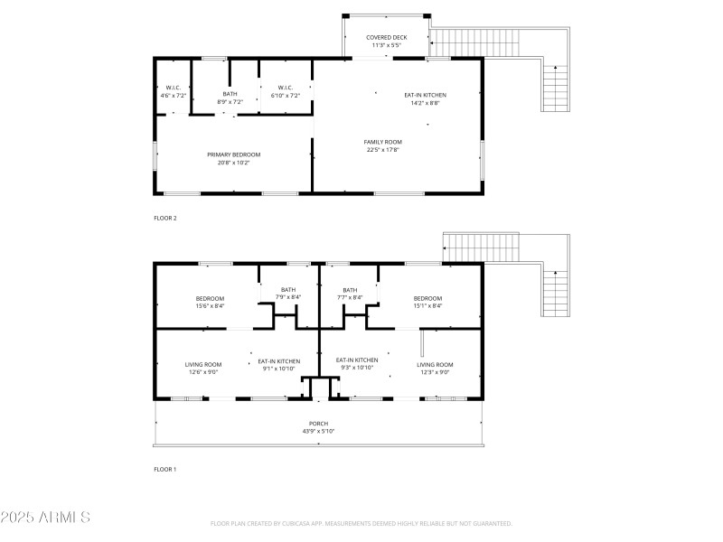
31 E Ramsey Canyon Triplex: 1702 sq. ft., 1982 build, 3 bedrooms, 3 bathrooms, 2 lower level suites, 1 upper grand suite, private courtyards, bird blind area, mini splits in each bedroom.
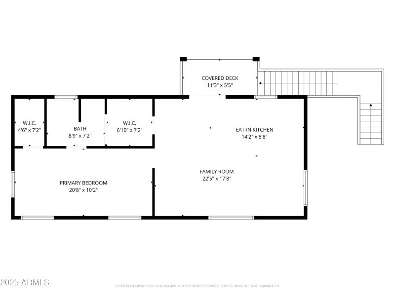
31 E Ramsey Canyon Hummingbird House: 1387 sq. ft., 1986, 2 bedrooms, 1.5 bathrooms, high ceilings, covered porch near running pond, expansive paver patio area
Multiple sheds on property for storage, ample parking, watering systems, raw land that can be developed and so much more.
South on Hwy 92, West on Ramsey Canyon Rd, follow to the end of the road, property is on the right just before Ramsey Canyon Preserve.
Dwelling Type: Residential
Subdivision: S10 T23S R20E
Year Built: 1978, County: N/A
South on Hwy 92, West on Ramsey Canyon Rd, follow to the end of the road, property is on the right just before Ramsey Canyon Preserve.
Listing is courtesy of Haymore Real Estate LLC