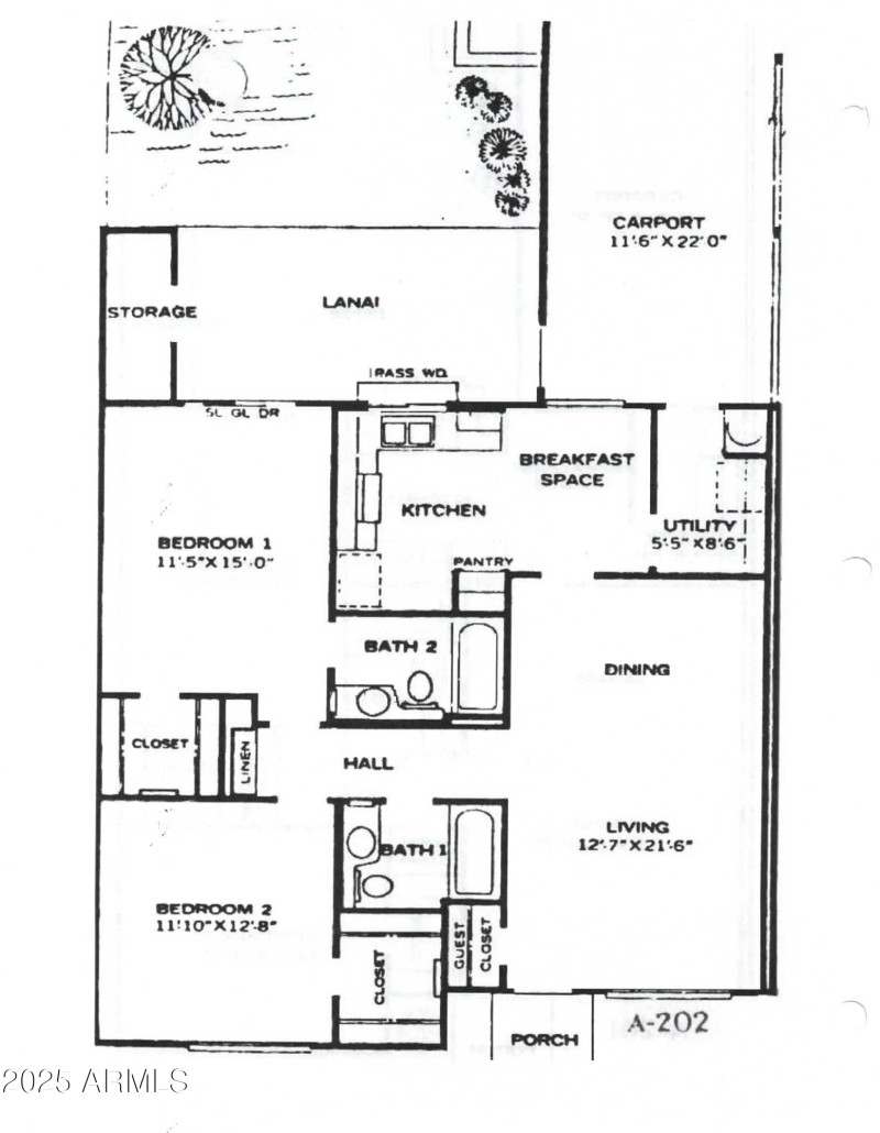
Check Out This GA202 Model Home In Sun City! The Spacious Living Room Features Tall Ceilings, And Part Of The Patio Has Been Enclosed To Create A Heated And Cooled Bonus Room. Perfect As An Office Or Sitting Area. The Kitchen Offers Updated Cabinets, Laminate Countertops, A Newer Sink, And Stainless Appliances. Flooring Includes Tile Throughout And Carpet In The Bedrooms. Electrical Outlets And Switches Have Been Pigtailed With Copper, And The Garage Provides Easy Access To The Electrical Panel Wiring. Additional Updates Include Vinyl Dual-Pane Windows, A 3-Year-Old A/C, Roof Recoated 4 Years Ago, And A 6-Year-Old Water Heater. The Private Back Courtyard Features A Block Wall, Partial Cover, And An Extended Pergola. Stop By To See All The Updates!
From Thunderbird and 99th go south to Royal Oak. Turn right on Royal Oak to 10020 on right side of street. Apt E is inside the courtyard on the right side
Dwelling Type: Residential
Subdivision: SUN CITY UNIT 24A
Year Built: 1972, County: N/A
From Thunderbird and 99th go south to Royal Oak. Turn right on Royal Oak to 10020 on right side of street. Apt E is inside the courtyard on the right side
Listing is courtesy of My Home Group Real Estate