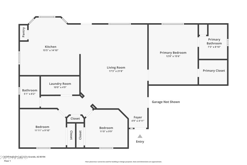
Welcome to this beautifully maintained 3 bed, 2 bath home on a sprawling acre and a quarter lot with no HOA. Built in 2022, this home is better than new with thoughtful, functional upgrades. The open-concept layout centers around a bright, modern kitchen, creating an easy flow for cooking, gathering, and connection. An oversized 2-car garage- spray-foam insulated, cooled by a 2-ton AC with a 50 amp service plug for an RV- offers abundant storage and a ready-made workshop or den. Custom sun shades help keep the home cool through the AZ heat. The lot is landscaped beautifully with ample space to make your mark with a casita, shop, horses, dirt bike track- there's room for it all. Relish peaceful country living just minutes from Casa Grande conveniences and quick I-10 access.
Head east on W McCartney Rd toward N Cox Rd 1.5 mi Turn right onto Marigold Ave. Destination will be on your left. This listing is for the second home you see on your left.
Dwelling Type: Residential
Subdivision: S6 T6S R7E
Year Built: 2022, County: N/A
Head east on W McCartney Rd toward N Cox Rd 1.5 mi Turn right onto Marigold Ave. Destination will be on your left. This listing is for the second home you see on your left.
Listing is courtesy of Pak Home Realty