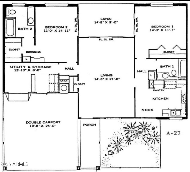
LET'S BEGIN WITH NEARLY $80,000 IN UPGRADES AND UPDATES! PLEASE SEE PHOTOS FOR DETAILED LIST. Warm & inviting best describes this beautifully maintained 2-bedroom, 1.75-bath home ideally located near the Mountain View and Fairway Recreation Centers. Lovingly cared for by the current owners for nearly a decade, this residence showcases pride of ownership throughout. Upon arrival, you'll be welcomed by a charming and private courtyard featuring an Alumawood® pergola-perfect for staying cool and shaded year-round. The paver patio offers an ideal space for relaxing or entertaining neighbors and friends. Inside, the open concept great room seamlessly combines the living and dining areas, creating a comfortable and spacious setting. (Please push ''more'' for additional details.) Large windows invite in natural light and capture views of the lush, park-like greenbelt--bringing the outdoors in. The desirable split-bedroom floor plan ensures privacy for both you and your guests. Visitors will appreciate their own private bath and comfortable accommodations. Start your morning with a fresh cup of joe in the inviting eat-in kitchen before stepping through the patio door to the front courtyard, where you can enjoy a peaceful sunrise or relax with a good book. In the evenings, unwind with a glass of wine in the fully enclosed Arizona room - your own private retreat after a long day. When the weather is perfect, move outside to your private paver patio, complete with an Alumawood® pergola - ideal for entertaining guests or simply taking in the tranquil, park-like surroundings. Lets not forget about the spacious utility/flex room offers endless possibilities - perfect for a home office, craft space or hobby room. Hey guys the two-car garage provides ample space for your classic car, additional storage or your favorite outdoor toys. This home is an excellent choice for snowbirds seeking a convenient lock-and-leave lifestyle. With professionally maintained landscaping, you can enjoy all the beauty without the upkeep. Whether you're home or away, automatic roll-down security shutters ensure peace, privacy, and protection at the touch of a button. Perfect as either a seasonal retreat or a year-round Arizona residence, this home offers everything you need to enjoy desert living at its finest. Come see for yourself what makes it so special!
111th south to Mountain View turn left to Cinnebar turn left to house on the left.
Dwelling Type: Residential
Subdivision: SUN CITY UNIT 6H REPLAT
Year Built: 1968, County: N/A
111th south to Mountain View turn left to Cinnebar turn left to house on the left.
Listing is courtesy of eXp Realty