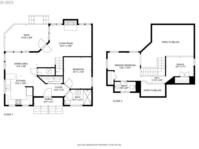
Discover the allure of coastal living in this enchanting Manzanita home, ideally positioned just one block from the beach. Small in size but abundant in character, this 2-bedroom, 1.5-bath gem includes a versatile bonus room perfect for guests, an office, or creative space. The kitchen and living area are surrounded by windows that fill the home with light. A woodstove and stunning wood ceilings add warmth and charm. Whether you're looking for a weekend retreat or a peaceful full-time residence, this sweet spot offers comfort, style, and the laid-back vibe of life by the sea.
1st and laneda
Dwelling Type: Residential
Subdivision: N/A
Year Built: 1989, County: US
1st and laneda
Listing is courtesy of RE/MAX Coastal Advantage
Sign in to your account to continue