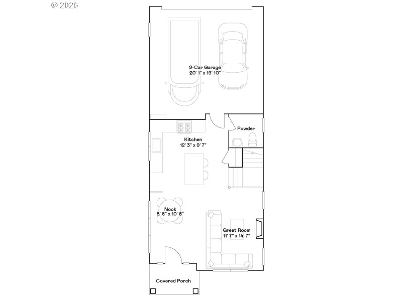
This new construction home is located in Butternut Creek by Lennar in charming Hillsboro. The Natalia plan features a bright two-story layout with an open main floor where the kitchen, dining nook, and great room connect effortlessly. Upstairs, all three bedrooms are located together, including a spacious primary suite featuring an en-suite bath with dual vanities and a walk-in closet. Interior highlights include quartz countertops, shaker-style cabinets, LVP (luxury vinyl plank) flooring in the kitchen and entry, LVT (luxury vinyl tile) flooring in the bathrooms, two-tone interior paint, and landscaping. This home also includes central air conditioning, a refrigerator, washer and dryer, and blinds—all at no extra cost! Butternut Creek is conveniently located just minutes from the Intel campus, Nike, and Reed's Crossing Town Center loaded with shopping and dining options. This brand new community is packed with amenities including a community park with picnic areas, multi-use trails, a splash park, sports court, bike track, open space, dog parks and more. Located on homesite 523, this home is expected to be complete in winter 2025. Rendering is artist conception only. Photos are of a similar home, features and finishes will vary. Flex credit/closing cost incentive available when financing with preferred lender! Use towards rate buydown and closing costs.
SW Cornelius Pass to Left on Butternut Creek Pkwy. Welcome Home Center is on the corner of 77th
Dwelling Type: Residential
Subdivision: BUTTERNUT CREEK
Year Built: 2025, County: US
SW Cornelius Pass to Left on Butternut Creek Pkwy. Welcome Home Center is on the corner of 77th
Listing is courtesy of Lennar Sales Corp
Sign in to your account to continue