Casa de Luz—a house of light, views, and quiet intention—rises gracefully above the Fountain Hills Botanical Garden on a large, private desert lot. From the moment you arrive, it becomes clear this is not simply a home, but a place meant to be felt.
Natural light pours in from dawn to dusk, shifting gently through the day and creating an ever-changing dialogue between indoors and out. Expansive windows and thoughtfully placed balconies blur the line between living space and landscape, framing sweeping desert views while providing welcome shade from the summer sun. Here, mornings begin with soft light and birdsong, and evenings unfold beneath vast, star-filled skies—an experience elevated by Fountain Hills' renowned dark-sky setting.
Designed in the late 20th century with... contemporary sensibility and purpose, Casa de Luz reflects an era when architecture honored both form and environment. Over time, the home has been lovingly stewarded by owners who respected its original character while guiding it forward. Updated systems, refined interiors, and redesigned landscaping ensure modern comfort, while preserving the soul and architectural integrity that make the home timeless.
This is a residence that invites you to slow down, look outward, and reconnectwith nature, with light, and with the quiet beauty of desert living. Casa de Luz is something to experience, not just to see.
West on Ocotillo, Left on Pincushion, Right on Burro
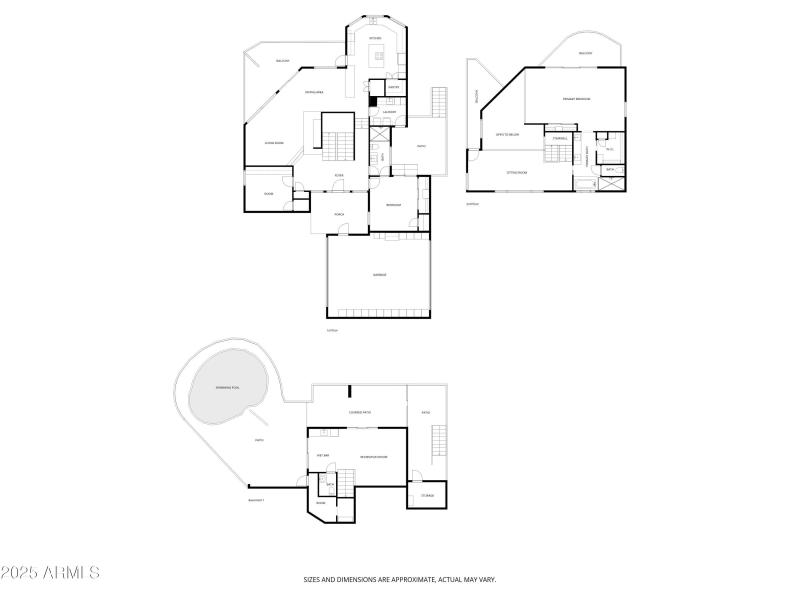
Dwelling Type: Residential
Subdivision: FOUNTAIN HILLS 605-A LT 24 BK 1 LT 14,15 BLK 2
Year Built: 1980, County: N/A
West on Ocotillo, Left on Pincushion, Right on Burro
Listing is courtesy of MCO Realty
Sign in to your account to continue