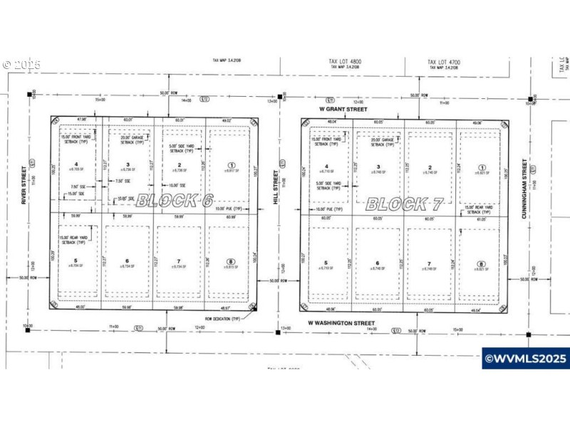
Welcome to Carlton's newest development! Located directly across from Wennerberg Park & next to farm ground, they make for a truly peaceful setting. All lots over 6700 square feet & all at 60' wide to easily fit a 3 car garage plan or allow for extra RV/Trailer parking. Construction complete & lots are all ready for foundations, bring your own plans! Each lot comes with approx $4,300 in SDC credits, this is discounted off the price of your building permits! Entity member is a licensed broker in State of OR.
S Cunningham St
Dwelling Type: Land
Subdivision: J Wennerbergs Add.
Year Built: N/A, County: US
S Cunningham St
Listing is courtesy of Coldwell Banker Mountain West