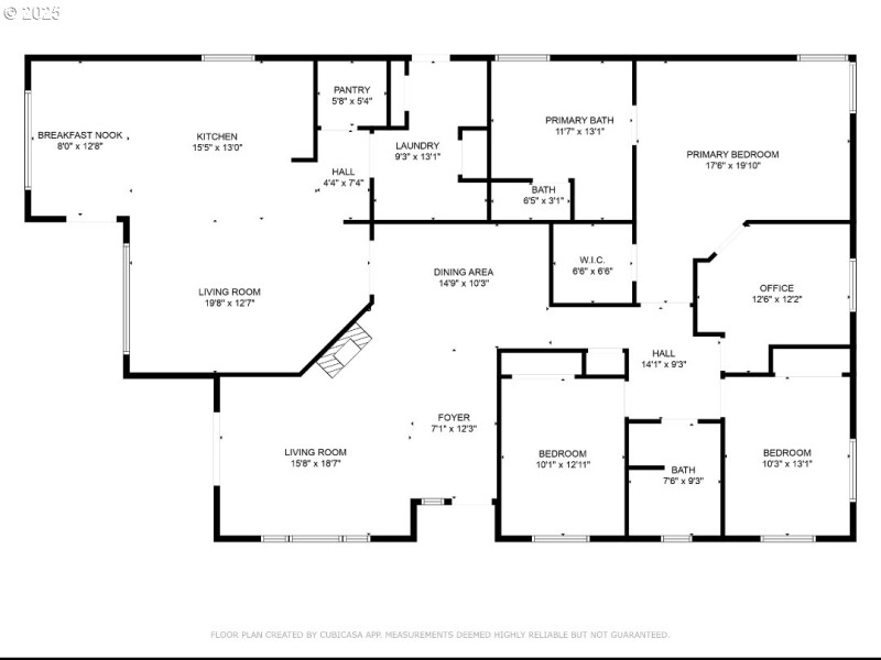
NEW roof on home and garage August 2025** The siding was also retouched, and exterior of home has a fresh coat of paint. This home is in the heart of two college towns. Monroe is a 20 minute drive in either direction to get to Eugene, home of the Ducks or Corvallis, home of the Beavers! Monroe is small, population of 688, but big on heart! This home sits just behind the high school, a 10-minute walk to the grade school, banking, post office and your choice of restaurants, including Long Timber. 10 wineries within 15 min, including world renowned Broadly and Benton Lane winery. Minutes from award winning Diamond Woods golf course. This property and location truly has it all. An easy commute for anyone from Corvallis to Eugene and anywhere in between. Welcome to your own slice of paradise. Open concept floor plan with wide hallways, a living room, family room, eat in kitchen nook, and formal dining area. Kitchen features a large island to prep all your meals or craft projects. This home is perfect for hosting gatherings! Need extra storage? There is a butler pantry complete with cabinets. Primary suite includes walk in closet, a spacious bathroom with a corner jetted soaking tub and separate shower. Primary has attached office or additional 4th bedroom, as the office has its own hall entry and closet. Additional 2 bedrooms are next to 2nd full bathroom with ample storage cabinets. Laundry room has cabinets for storage as well as a large basin sink. Garage has more than meets the eye. 2-car garage has 2 additional rooms for an outside pantry, home gym, gaming, crafting, etc. ¾ of an acre with plenty of room for your RV, boat and toys!! Off the back living room is a covered patio to the backyard for all of your outdoor entertainment. Two large stick-built storage sheds with new paint and roof August 2025. Plenty of flat yard for animals, play, and more.
Hwy 99/ Oak st
Dwelling Type: Residential
Subdivision: N/A
Year Built: 2008, County: US
Hwy 99/ Oak st
Listing is courtesy of Wonderland Realty LLC