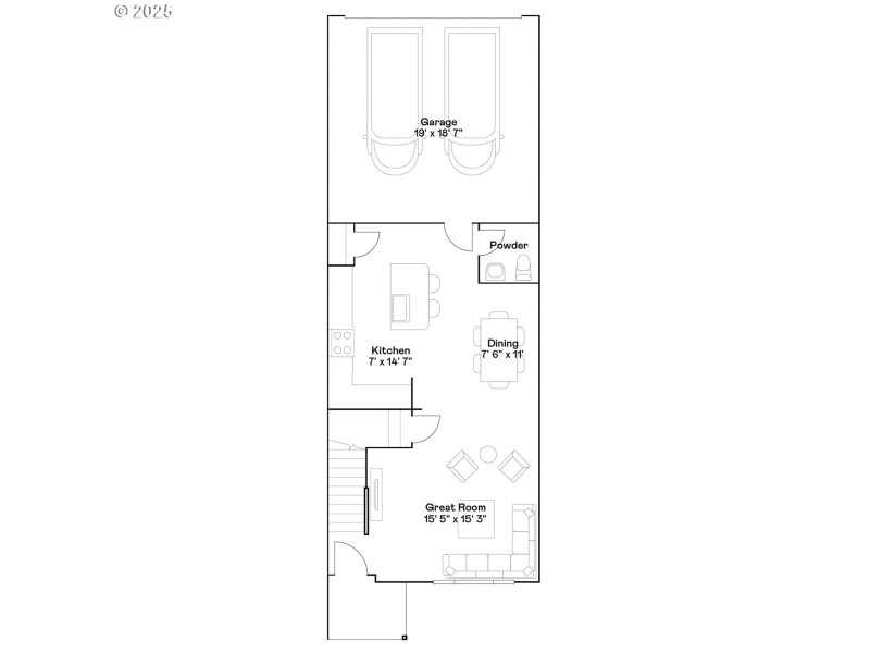
Welcome to Brynhill by Lennar in beautiful North Plains. This Daphne plan offers a low-maintenance design with an open layout that connects the great room, kitchen, and dining area, creating an ideal space for everyday living. Upstairs are three bedrooms and a versatile tech room, including the luxe primary suite with a walk-in closet and spa-inspired bathroom. Interior finishes include quartz countertops, shaker-style cabinets, LVP (luxury vinyl plank) flooring in the kitchen and entryway, and LVT (luxury vinyl tile) flooring in the bathrooms. This home also comes with central air conditioning, a refrigerator, washer and dryer, and blinds—all at no extra cost. This brand-new community offers multiple onsite parks featuring pickleball, basketball, a putting green, a cornhole area, playgrounds, and picnic areas. Rendering is artist conception only. Photos are of a similar home, features and finishes will vary. Estimated Completion: November 2025. Homesite 392. *Below-market rate incentives available when financing with preferred lender.*
US-26 to Glencoe Rd north, left on North Ave, right on 309th, Left on Brookings to the Model Home
Dwelling Type: Residential
Subdivision: BRYNHILL
Year Built: 2025, County: US
US-26 to Glencoe Rd north, left on North Ave, right on 309th, Left on Brookings to the Model Home
Listing is courtesy of Lennar Sales Corp